【ネクスタマガジン022】新着情報!自分らしく住まう邸宅を。Modula渋谷富ヶ谷

物件紹介
今回のネクスタマガジンは、最新のModulaをご紹介します。

Modula渋谷富ヶ谷

新宿や渋谷へは約10分圏内、さらに東京メトロ千代田線を使えば東京の中心部のどこへでも30分以内という利便性ながら、代々木公園や明治神宮など緑豊かで静かな環境が身近にある富ヶ谷。
流行の発信地でもあり、人気のショップやレストランが集まる代々木八幡・代々木上原・下北沢などにも気軽に足を運べるのも大きな魅力。年代を問わず、常に高い人気を誇る、憧れの町です。

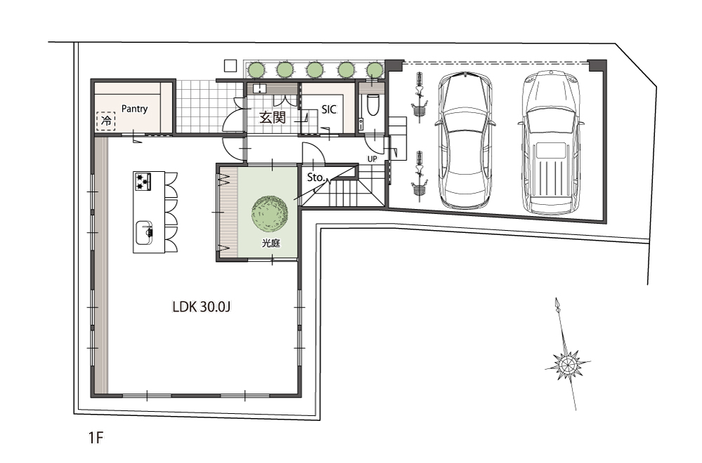
そんな人気の好立地に173.23㎡、約52.4坪という大きな敷地面積を誇るModula渋谷富ヶ谷。
あなたなら、どんな邸宅を思い描きますか?

Modulaなら、例えばこんなご提案を。

ビルトインガレージも、2台がじゅうぶんに停められる広さ。趣味を楽しむ場所としても使えます。
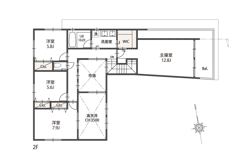
敷地面積に余裕があるので、4LDKもゆったりと。
特に家族の集まるリビングは、30畳と大空間に。吹き抜けや高い天井で明るく暖かい「家族が集まる場所」が作れます。

将来の家族の姿をイメージして部屋を設けたり、趣味のための部屋を作るのもいいでしょう。
土地の形状を活かして、主寝室は静かで落ち着ける場所に。
Modulaなら、お客さまの暮らしと将来のイメージにあわせて、最適な邸宅をご提案します。もちろん「一邸一匠」で、これまでModulaをいくつも手がけてきた高い技術を持った職人が、最初から最後まで責任を持って造り上げます。
Modula渋谷富ヶ谷、お気軽にご相談ください。
これ以外にもたくさんの土地をご紹介しています。
「あの街に住みたい」
「こんな暮らしがしたい」
「自分らしい住まいを作りたい」
というご要望だけでも結構です。
お聞かせいただければ、ご提案をさせていただきます。ぜひお問い合わせください。







